fabriq est un bureau d’architectes basé à aigle dont les champs d’exploration questionnent théorie, mémoire et narration. Inspirée par la recherche et le contexte, l’approche de fabriq se caractérise par un processus mêlant fonctionnalité et poétique.

fabriq architectes sàrl
avenue du chamossaire 10
ch-1860 aigle
0041 79 725 48 95
projet@fabriq.ch

projets

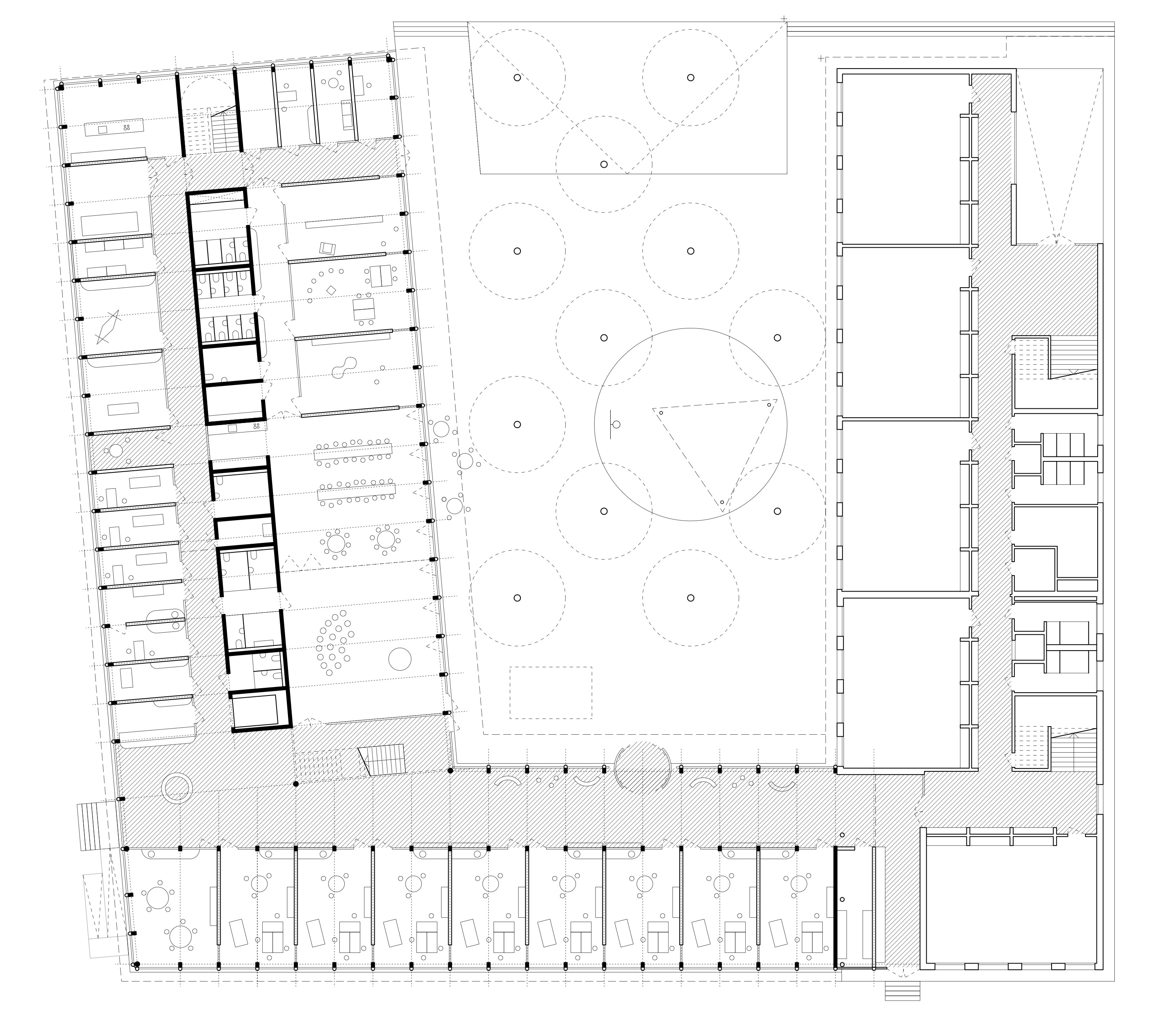
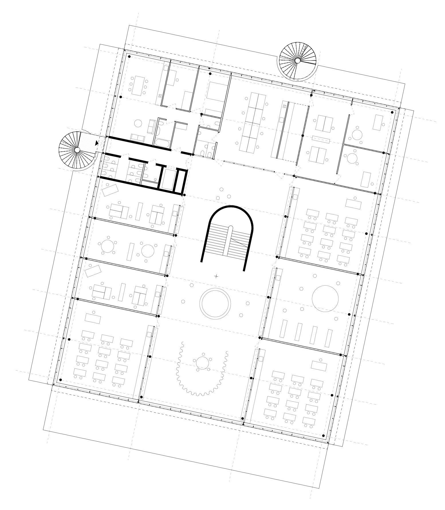
twix, école, concours ouvert, roche vd, 2025

abri, couvert, mandat direct, aigle, 2024

pharus, belvédère, projet théorique, 2024

kapla, école, concours ouvert, thônex, 2023

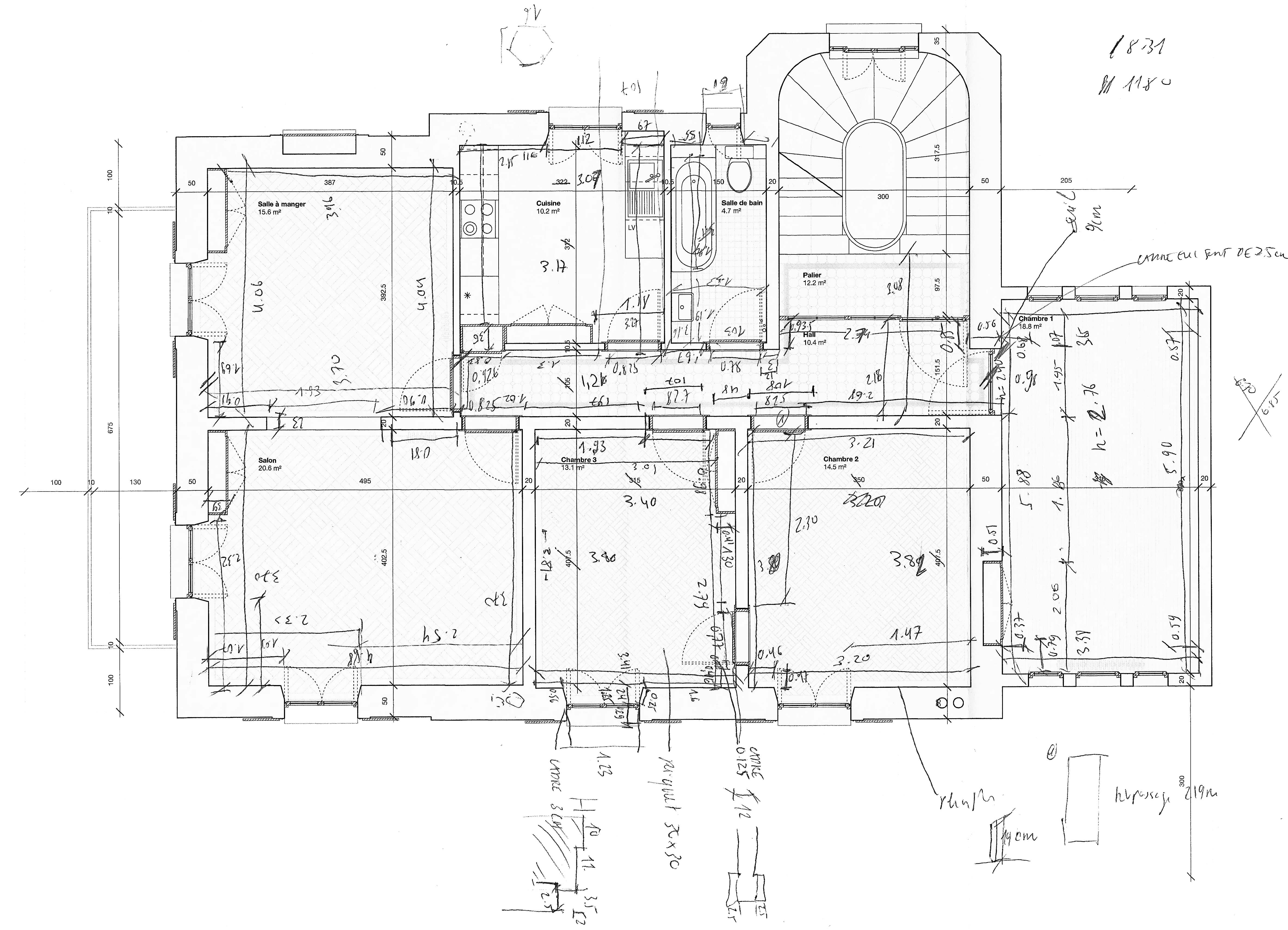
enfilades, rénovation d’un appartement heimatstil, aigle, 2023

floating, aménagement extérieur, aigle, 2023

autour du foyer, epsm, coucours ouvert, montherod, 2023

vo obe abe, étude pour la transformation d’une maison à colombage classée, allschwil, 2023

projet k, recherche théorique, 2022 - en cours

peristyle, étude pour la reconstruction d’une villa individuelle, founex, 2022

delirious mont fleuri, revalorisation d’un funiculaire en friche, concours d’idée projet lauréat, territet montreux, 2021 - en cours

upgrade, rénovation d’un appartement dans une villa urbaine, aigle, 2020

coloc’, epsm, coucours ouvert, château-d’oex, 2017

alaskan way jetty, projet de concentrateur social urbain, projet théorique, seattle, 2017

ville paysage infrastructure, recherche théorique sur le made man landscape, 2017

distinctions

publications

équipe

jonathan amort, msc arch. epfl

social